収納、部屋の確保、リビングの広さのお悩みを解決しました。
- 外観リフォーム
- 水まわりリフォーム
- LDKリフォーム
- 二世帯同居型リフォーム
- おうちまるごとリフォーム
お客様のご要望
和室とリビングをつなげて広いリビングにしたい。
ウォークインクローゼットを設置して収納を増やしたい。
家事効率をUPさせたい。
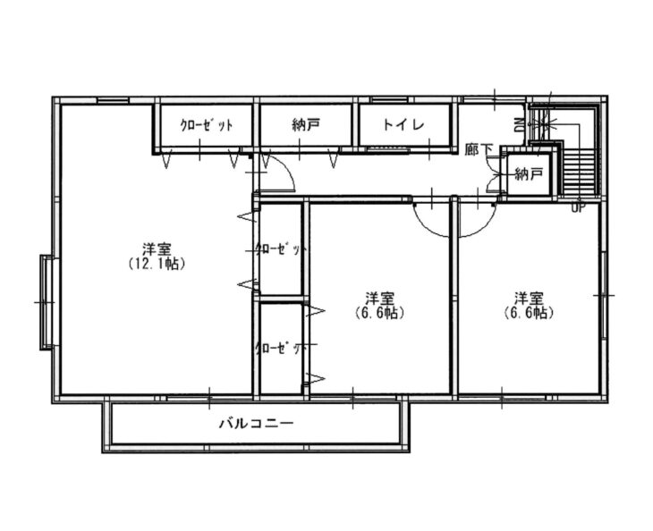
2階の部屋を増やしたり、1階作業スペースを確保したリフォームをしたい。
ウォークインクローゼットを設置して収納を増やしたい。
家事効率をUPさせたい。
2階の部屋を増やしたり、1階作業スペースを確保したリフォームをしたい。
ご提案内容
施工前はこちら










施工が完了しました










お施主様の感想
生活スタイルの変化
家事効率がUPし、とても助かっています。
リモデルしてスマイルになったこと
収納スペースが増えてスッキリと生活できるようになり、家事効率もUPしました。
また、暖かく生活できるようになりました。
担当者より
玄関の位置を家の中心にすることで廊下が減り、空間を有効に活用できました。
水まわりを集め、ぐるぐるとまわれる動線にすることで家事効率がUPしました。
隣家との窓の位置に配慮し、LDKに高窓をつけました。
玄関からすぐ入れる場所に和室を作り、奥様のお部屋兼収納としました。

